DOONHEIDE-Molenbroekse loop
Hoekwoning aan Fliere te Gemert
In dé uitbreidingswijk van Gemert, Doonheide, is een nieuwe deel ontwikkeld. De nieuwe wijk ligt aan de noordwest zijde van Gemert en sluit mooi aan op de landelijke omgeving. Een prettige, nieuwe woonwijk waar het Brabantse leven goed gedijt.
Welkom in Gemert
Gemert voelt als een warm bad. Deze Oost-Brabantse gemeente van ca. 16.000 inwoners heeft het oude perfect weten te combineren met het nieuwe. In de kern zijn nog veel historische gebouwen te vinden, zoals het middeleeuwse kasteel en zijn fraaie park. Goed aansluitend op de oude kern zijn diverse moderne woonwijken gebouwd. Van daaruit ben je zo in het landelijke, groene buitengebied.
Aantrekkelijke locatie
Gemert heeft zich met zijn winkels, horeca, scholen en andere voorzieningen ontwikkeld tot een aantrekkelijk streekcentrum. Er zijn mooie plekken waar je recreatief kunt wandelen, fietsen, golfen en paardrijden.
Goed bereikbaar
Gemert is gunstig gelegen op slechts 12 km van Helmond, 25 km van Eindhoven en 34 km van ’s-Hertogenbosch. Goede ontsluitingswegen leiden je naar de snelwegen. Ook zijn er uitstekende busverbindingen met de omliggende dorpen en steden.
De woning heeft een tijdloze, frisse klassieke stijl.
Energiezuinigheid
De woning levert een hoge energieprestatie conform de huidige regelgeving. De gevels, vloeren en daken beschikken over een hoge isolatiewaarde en een hoog rendementsketel.
Gevels en daken
De gevels zijn opgetrokken van steen en voorzien van hardhouten kozijnen. Dankzij inbraakwerkend hang- en sluitwerk is de woning goed beschermd. Verschillende roodtinten, keimwerk en accenten in het metselwerk, klassieke details zoals gootklossen en keramische dakpannen geven de woning een klassiek karakter.
Keuken
De in de plattegrond aangegeven keukenopstelling met apparatuur is slechts een impressie. Details van de daadwerkelijk toegepaste keuken met een nieuwwaarde van ruim €12.000 zijn op aanvraag beschikbaar.
Sanitair
De toilet- en badruimte zijn incl. hoogwaardige kwaliteitsmaterialen van Villeroy en Boch en tegelwerk uitgevoerd.
Kenmerken
- Ruime hoekwoning met topgevel
- Extra ruime hoekwoning met stoere luiken en mooie kozijnen.
- Multifunctionele zolderverdieping met vaste trap bereikbaar.
- Kaveloppervlakte; 186 m2/ Inhoud ca.479 m3
- Garage en parkeren op eigen terrein
- Tuin op het zuiden
U kunt bieden vanaf €298500 v.o.n.
INDELING BG GROND2
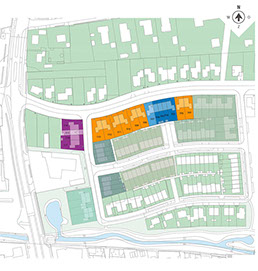
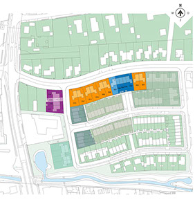
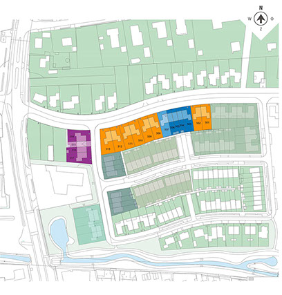
PLATTEGROND LOCATIE
1 - 2
<
>
INDELING BG GROND
1 - 1
<
>
EERSTE VERDIEPING
1 - 1
<
>
TWEEDE VERDIEPING
1 - 1
<
>
CONTACT